 |
【グランカーサ北浦和】北浦和の3LDK賃貸マンション |
お問合わせNO: 014801-8139c |
|
|
| 家賃 |
22.5万円 |
共益費 / 管理費 |
20,000円 / - |
敷金 / 礼金 |
0ヶ月 / 0ヶ月 |
| 種別 / 構造 |
マンション / RC造(鉄筋コンクリート造) |
主要採光面 |
南 |
保証金 / 敷引 |
0ヶ月 / 0ヶ月 |
| 専有面積 |
73.1m2 |
所在階 / 階数 |
1階 / 6階 |
築年月 |
2019年6月 |
| 間取り |
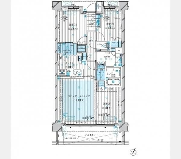
3LDK
( LDK15.5畳/洋室6.2畳/洋室6畳/洋室4.8畳 ) |
交通
|
JR京浜東北・根岸線 「北浦和駅」 徒歩7分
|
| 所在地 |
埼玉県さいたま市浦和区北浦和3丁目 周辺MAP |
| 小学校区 |
さいたま市立北浦和小学校 (埼玉県さいたま市浦和区) |
中学校区 |
本太中学校 (埼玉県さいたま市浦和区) |
|
|
|
 |
写真枚数は 15枚 です。 |
 |
|
|
【グランカーサ北浦和についてスタッフからのイチオシポイント!】
北浦和駅から徒歩6分のグランカーサ北浦和。3LDKのマンションで、設備も充実。エアコンやインターネット対応も完備し、快適な生活を提供します。
グランカーサ北浦和は埼玉県さいたま市浦和区北浦和3丁目【JR京浜東北・根岸線 北浦和駅徒歩7分】にある3LDK賃貸マンションです。
2019年6月築の6階建てのマンションで、お部屋は6階建ての1階部分です。
物件の広さは73.1m2で人気の3LDKです。
※お部屋のもっと詳しい内容や入居時期、諸条件のご相談など、ホームページには掲載が間に合わず載せきれていない情報もございます。 気になることが御座いましたらお気軽にメールにてお問い合わせください。 |
|
| 損保 |
要 16,500円/2年 |
更新料 |
あり 新賃料 1ヶ月 |
鍵交換代 |
33,000円 |
| 駐車場 |
なし |
近隣駐車場 |
|
契約期間
借家区分 |
2年 - |
| 現況 |
空家 |
入居可能日 |
2026年5月上旬 |
取引態様 |
媒介 |
| 保証人代行会社 |
クレディセゾン 20.0% |
仲介手数料 |
|
バイク置き場 |
|
| 他初期費用 |
38,500円エアコン清掃費 |
| キッチン |
|
| バス・トイレ |
|
| 住空間 |
- 南向き
- フローリング
- 全居室フローリング
- エアコン2台
- 床暖房
- 照明付き
|
| 設備・サービス |
- ウォークインクロゼット
- TVインターホン
- エレベーター
- 宅配ボックス
- 防犯カメラ
- ネット使用料不要
- 24時間ゴミ出し可
|
| 特 徴 |
|
| 条件・その他 |
ガス:都市 / 水道:公営 / 排水:下水 / 保証人代行:必加入 |
| コメント |
北浦和駅から徒歩6分のグランカーサ北浦和。3LDKのマンションで、設備も充実。エアコンやインターネット対応も完備し、快適な生活を提供します。 |
| 備 考 |
北浦和駅から徒歩6分のグランカーサ北浦和。3LDKのマンションで、設備も充実。エアコンやインターネット対応も完備し、快適な生活を提供します。 |
| 情報更新日:2026年04月14日 |
次回更新予定日:2026年04月28日 |
|
※各種情報と現状に差異がある場合は、現状優先となります。 |
|
こちらの物件の空室状況 |
| 所在階 / 部屋番号 |
賃料 |
管理費 |
間取り |
専有面積 |
敷金 |
礼金 |
お気に入り |
物件詳細 |
| 106 |
22.5万円 |
- |
3LDK |
73.1m2 |
0ヶ月 |
0ヶ月 |
お気に入り |
物件詳細 |
|
|