【島根貸家】与野本町の4SLDK賃貸一戸建て |北浦和の賃貸はセンチュリー21ハウスプラン

PC
物件種別から検索
【島根貸家】与野本町の4SLDK賃貸一戸建て
現在 0

【島根貸家】与野本町の4SLDK賃貸一戸建て

お問合わせNO:014801-8128c
家賃 12万円 共益費 / 管理費 - / - 敷金 / 礼金 2ヶ月 / 1ヶ月
種別 / 構造 一戸建て / 木造 主要採光面 保証金 / 敷引 0ヶ月 / 0ヶ月
専有面積 126m2 所在階 / 階数 - / 2階 築年月 1993年4月 
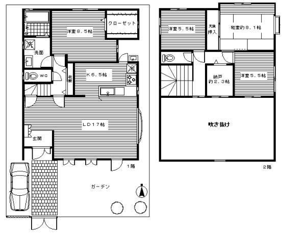
間取り 4SLDK ( LD17畳/K6.5畳/洋室8.5畳/和室8.1畳/洋室5.5畳/洋室5.5畳/S2.3畳 )
交通
JR埼京線 「与野本町駅」 島根橋 バス乗車時間13分  停歩3分
所在地 埼玉県さいたま市西区大字島根 
小学校区 さいたま市立植水小学校
(埼玉県さいたま市西区)
中学校区 植水中学校
(埼玉県さいたま市西区)

  • 【建物外観】 
  • 【間取】 
  • 【その他部屋・スペース】 
  • 【居室・リビング】 
  • 【居室・リビング】 
  • 【キッチン】 
  • 【洗面所】 
  • 【バス】 
  • 【トイレ】 
  • 【トイレ】 
  • 【その他部屋・スペース】 
  • 【収納】 
  • 【その他部屋・スペース】 
  • 【その他部屋・スペース】 
  • 【その他部屋・スペース】 
  • 【その他部屋・スペース】 
【建物外観】 
写真枚数は 16枚 です。  

【島根貸家についてスタッフからのイチオシポイント!】

LDKは開放感ある吹抜け構造
令和8年2月外壁修繕完了
洗面台・ガスコンロ・LDKエアコン新規設置済
島根貸家は埼玉県さいたま市西区大字島根【JR埼京線 与野本町駅島根橋 バス乗車時間13分  停歩3分】にある4SLDK賃貸一戸建てです。
1993年4月築の2階建ての一戸建てで、お部屋は2階建ての-部分です。
物件の広さは126m2で人気の4SLDKです。

※お部屋のもっと詳しい内容や入居時期、諸条件のご相談など、ホームページには掲載が間に合わず載せきれていない情報もございます。
気になることが御座いましたらお気軽にメールにてお問い合わせください。

 物件詳細情報

損保 不要 更新料 鍵交換代 -
駐車場 有 無料 近隣駐車場   契約期間
借家区分
2年 -
現況 空家 入居可能日 即入居可 取引態様 代理
保証人代行会社 仲介手数料 バイク置き場
他初期費用

 設備詳細情報

キッチン
  • システムキッチン
  • グリル付
  • 3口以上コンロ
  • 勝手口
バス・トイレ
  • 給湯
  • バストイレ別
  • シャワー
  • 追焚機能浴室
  • 洗面所独立
  • 温水洗浄便座
  • トイレ2ヶ所
  • 洗面所にドア
  • バス専用
  • トイレ専用
住空間
  • テラス
  • 南向き
  • フローリング
  • エアコン
設備・サービス
  • 収納
  • 押入
  • シューズボックス
  • 床下収納
  • 屋根裏収納
  • ウォークインクロゼット
  • 納戸
  • 駐輪場
  • 火災警報器(報知機)
  • 駐車場1台無料
  • 当社管理物件
特 徴
  • 陽当り良好
  • バス停徒歩3分以内
条件・その他  ガス:都市 / 水道:公営 / 排水:下水
コメント LDKは開放感ある吹抜け構造
令和8年2月外壁修繕完了
洗面台・ガスコンロ・LDKエアコン新規設置済
備 考 LDKは開放感ある吹抜け構造
令和8年2月外壁修繕完了
洗面台・ガスコンロ・LDKエアコン新規設置済
情報更新日:2026年05月22日 次回更新予定日:2026年06月05日
※各種情報と現状に差異がある場合は、現状優先となります。

近隣スポット情報

 こちらの物件の空室状況

所在階 / 部屋番号 賃料 管理費 間取り 専有面積 敷金 礼金 お気に入り 物件詳細
12万円 - 4SLDK 126m2 2ヶ月 1ヶ月 お気に入り 物件詳細

 こちらの物件へのお問合せはこちらから

ホームページを見てと伝えてください
センチュリー21ハウスプラン
〒330-0074
埼玉県さいたま市浦和区北浦和1丁目3-9
TEL : 0120-69-0021
お問合わせNO:014801-8128c

空室情報の確認や詳細を知りたい方
お問合せはお気軽にお問合せください!


この物件に似た物件をチェック!


閲覧した物件の履歴

閲覧した物件の一覧を見る


気になったら今すぐ!カンタンお問合せ



お問合せ内容必須
【備考欄】
希望条件・来店希望日・その他質問がございましたらご記入ください。
お客様情報
お名前必須
連絡先必須


※ご記入いただいたメールアドレス宛てに、お問合せ内容の確認メールをお送りいたします。
※Yahoo!メールなどのフリーメールをご利用の場合、迷惑メールフォルダに入る場合があります。
 迷惑メールのフォルダ・設定等をご確認下さい。
メールアドレス
電話番号
FAX(任意)



※ご入力いただいたお客さまの個人情報は、「個人情報のお取り扱いについて」に基づき適正に取り扱います。
必ずお読みになり、同意の上お問い合わせください。
 


▲ページのTOPへ戻る



PAGETOP