| 価格 | 6,180万円 ![]() |
||||
|---|---|---|---|---|---|
| 所在地 | 埼玉県さいたま市浦和区北浦和2丁目
この地域周辺の物件を見る |
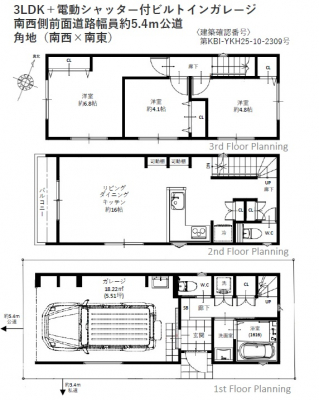
土地面積 | 53.63m² (公募) (16.22坪) | 建物面積 | 99.22u |
| 築年月 | 2026年築 | 間取り | 3LDK (LDK16/洋室6.8/洋室4.8/洋室4.1) | ||
| 交通 |
JR京浜東北・根岸線 北浦和/徒歩10分
JR京浜東北・根岸線 与野/徒歩15分 |
||||
電話をかける(携帯・PHS可)
0120-69-0021
「ホームページを見て」とお伝え下さい。
お問い合わせ番号をお伝えください
RHS-014801-110201
| 特徴 |
|
|---|---|
| セールスコメント | 人気の北浦和小学区内・南西側前面道路幅員約5.4m公道に面す |
| 採光面 | 南西 | 構造/階数 | 木造/地上3階建 |
|---|---|---|---|
| 建ぺい率 | 60(%) | 容積率 | 200(%) |
| 駐車場 | 有 | 現況/引渡し | 建築中/相談 |
| 土地権利 | - | 私道負担面積 | - |
| 接道状況 | 接道: 南西 5.4m 公道 接道: 東南 3.4m 私道 |
用途地域 | 第一種住居地域
|
| セットバック | - | 法令上の制限 | 準防火地域、景観法、盛土規制法、文化財保護法 |
| 地目 | 宅地 | 地勢 | |
| 建築確認番号 | 第KBI-YKH25-10-2309号 | 都市計画 | 市街化区域 |
| 小学校区 | さいたま市立北浦和小学校 (埼玉県さいたま市浦和区) この学区の他の物件を見る |
中学校区 | 本太中学校 (埼玉県さいたま市浦和区) この学区の他の物件を見る |
| 取引態様 | 仲介 | ||
電話をかける(携帯・PHS可)
0120-69-0021
「ホームページを見て」とお伝え下さい。
お問い合わせ番号をお伝えください
RHS-014801-110201
| 年利率 | % |
||
|---|---|---|---|
| ボーナス払い | 返済年数 | ||
| 頭金 | 直接入力する | 万円 | |

毎月のご返済額 |
ボーナス(×年2回) |
物件価格6,180万円 |
電話でお問い合わせ
センチュリー21ハウスプラン
|
電話をかける 0120-69-0021 ※「ホームページを見て」とお伝えください。 |
お問い合わせ番号をお伝えください RHS-014801-110201 |
|---|
■JR京浜東北線「北浦和」駅徒歩10分
■通勤、通学、買物便利です
■大切な車を守る電動シャッター付ビルトインガレージ
■角地(南西・南東)
■北浦和小・本太中学区内